Fusion Brent Cross Town (BXT), London – PBSA Leisure Spaces Design

Biofit supported Fusion Students’ first London scheme at Brent Cross Town, designing a 242 m² suite of resident leisure spaces—including strength & cardio, functional training, a yoga/wellness studio, and an indoor basketball court with adjacent boxing studio—created for safe, autonomous 24/7 resident use and a highly visible, “active frontage” presence at ground and mezzanine levels.

Fusion Brent Cross Town London building exterior

Fusion Students Brent Cross Town London building exterior

Image credit: Fusion Students official photograph.


PROJECT OVERVIEW

  • Client: Fusion Students (Fusion BXT Devco Ltd)

  • Location: Brent Cross Town (BXT), London

  • Project type: PBSA (Purpose-Built Student Accommodation) leisure / wellbeing facilities

  • Total leisure design scope: 242 m² (4 spaces)

  • Final areas (as delivered):

    • Strength & cardio gym: 77 m²

    • Functional gym (incl. covered outdoor): 52 m²

    • Basketball court: 69 m²

    • Yoga & wellness studio: 44 m²

  • Biofit team: Matt Morley (Project Director / Lead Wellness Consultant), Polly Andrews (Interior Designer)

  • Wider ground-floor amenity interiors: NEKA Studio

  • Architect: Corstorphine & Wright

  • Main contractor: JJ Rhatigan

  • Biofit role: gym design, wellness design, leisure facility design

  • Photo credit: All images courtesy of Fusion Students

Brief and objectives

Fusion’s leisure spaces brief called for:

  • Active, inviting frontage and a lively arrival experience.

  • Unmanned, autonomous 24/7 operation, with robust detailing and minimal management burden.

  • Facilities that are highly marketable across digital channels (website/social/print).

  • A sustainability-conscious approach aligned to a BREEAM Excellent target.

Design response

Biofit translated the brief into a cohesive, zoned set of spaces that read as one “leisure destination” while supporting different energy levels—from high-intensity training and competitive play to calmer yoga and mobility work.

The final programme also evolved from the earliest brief: the proposed e-gaming / WallJam concept was reassessed and re-scoped into a wellness-led studio offering broader day-to-day utility and stronger alignment with resident wellbeing goals.

GYM & WELLNESS DESIGN CONSULTANT SERVICES

Biofit delivered a full interior design and equipment design package from early concept definition and space planning (with a keen eye on user capacities) through to schematic and technical design packs—layouts, equipment specification, finishes, lighting intent, joinery/FF&E schedules— this was then handed over for construction delivery by the main contractor team.

student accommodation gym design by Biofit for Fusion Students

Fusion Students Brent Cross Town London functional training area

Image credit: Fusion official photograph.

Scope Of Work

Initial zoning and concept development

Space planning and circulation design

Equipment programme, quantities and layout coordination

Interior design intent and finishes

Detailed design information for technical delivery by local contractors onsite

for fusion's BXT development we were asked to squeeze a range of training concepts into limited space - from strength and cardio to functional fitness, yoga and kickboxing - making this one a lot of fun creatively

– Matt Aspiotis Morley

Gym design: a dedicated cardio & strength room

Due to space constraints, we split the cardio and strength machines (high density, higher capacity) from the functional training (lower density, lower capacity) to maximize the area available to us. The cardio machines lined up along the front wall to benefit from floor to ceiling glazing. As there were no barbells in this space, we could comfortably use mirrored glass at the far end to make the gym seem larger. We also created a protective skirting section using terracotta tiles around the perimeter to add an earthy, artisanal material (with no fear of free-weights causing future damage). Our chosen strength machines then lined up along the back wall, a mix of upper and lower body, all custom finished in a tonal beige to integrate into the overall aesthetic. Circular acoustic baffles finished in rattan added further texture and visual interest to the space, while improving the acoustics too.

Fusion Students Brent Cross Town London gym design by Biofit

Image credit: Fusion official photograph.

Strength & cardio gym (77 m²) 

Freemotion treadmills, ellipticals, and Coachbikes (connected/virtual training)

Woodway Curve manual treadmills (self-powered running)

Ergatta / WaterRower (connected rowing)

Watson selectorised and plate-loaded strength pieces (e.g., leg press, leg extension, pulldown/row, chest press) with custom finishes as always

Contrasting turf track to divide the two training areas visually

Gym design: indoor-outdoor functional training space

Divided from the main gym by a corridor, the functional training area features a half rack with a full range of equipment add-ons; for those who are looking for a complete functional workout, this essentially becomes an all-in-one-solution. A set of stainless steel dumbbells and adjustable benches in front of mirrored wall panels, plus some covered outdoor space for laying down an exercise mat all make this a practical extension of the main gym. Our sense is that many gym-goers today need empty floor space and some equipment, then the rest comes from following online workouts; so this area is our response to that shift in how younger generations are leveraging content for added motivation.

student accommodation gym design by Biofit for Fusion Students UK

Image credit: Fusion official photograph.

functional training zone (52 m²)

BeaverFit half rack with integrated storage and attachments (dip/landmine/battle rope points, etc.).

Watson dumbbell set + storage rack as well as two adjustable benches in custom finishes.

A variety of wall balls, kettlebells and bands for mobility, warm-ups, and bodyweight training.


Indoor basketball court

This indoor court went through a number of design iterations but in the end the key to it all were the padded wall sections inspired by jiu-jitsu gyms and dojos. Our concern was that in such a tight space students could potentially do themselves some damage on a wall if we didn’t somehow protect them. As Matt spends a lot of time in martial arts spaces, where it is perfectly normal to end up slammed against a wall while grappling an opponent, the same wall mats inspired the eventual solution here too. As we needed custom dimensions however, and dojo mats are all standard sizes, we turned to a specialist wall padding supplier in the UK called Apex for help.

indoor basketball court design for Fusion Students UK, a premium student accommodation brand, by Biofit gym + spa consultants

Image credit: Fusion official photograph.

court details (69 m²)

Half-court basketball provision with wall-mounted goal at practice height. Floor half-court markings by Continental

Apex safety padding panels for walls, covered in Chieftain Fabrics Faux Leather PVC over CMFR Foam

Slatted wood panels surrounding the backboard, from ceiling to above

Watson bench integrated into a seating snug for non-active players off to one side of the court


Boxing + kickboxing studio

Without really knowing if any future Fusion students would have kickboxing or boxing experience, here our intention was to create a foolproof space that could be used and abused with little fear of operational issues further down the line. To avoid any risk of the bags impacting the industrial style mirrored wall panels, we sourced Venum kickboxing bags that we could anchor to the ground, minimizing the risk of excess ‘swing’. Although there are three bags, it’s really intended for 1-2 people at a time, with a drinks station against the back wall and space for boxing gloves to be neatly stored on a wall.

Fusion Brent Cross Town London boxing studio by Biofit

Image credit: Fusion official photograph.

The equipment schedule includes:

Venum UK heavy bags 150cm height x 3 units

Venum boxing gloves available for students to use


Interior materials & finishes: fire safety, risk management and noise reduction

As we were assigned a mezzanine level for the gym area, there was considerable concern amongst the team that gym impact noise would pass through the concrete slab and up into the residential floors above. In order to mitigate this, we worked with the acoustics consultant to come up with a multi-layer strategy to limit sound transfer to an absolute minimum. This involved careful flooring and underlay selection as well as acoustic sound-absorbing pads under the treadmills and around the squat rack. Other key concerns were reducing the risk of a student running into an unprotected wall section in the basketball court and ensuring suitable fire safety rating certificates for all our material selections.

Material finishes sheet for Fusion Students Brent Cross Town London by Biofit

Example Material Specifications:

Performance flooring and turf systems specified for training loads and acoustic comfort from Ecore (covering gyms x 2, basketball and wellness studio

Topcret microcement wall finishes

Todo Barro terracotta wall tiles with antique finish

Kvadrat ceiling raft material and curtains

Fire-performance and robustness considerations called out for wall/ceiling linings and protective elements in sports zones.


Technical Design delivery and coordination

Biofit’s role extended beyond concept visuals into technical delivery—coordinating equipment footprints, servicing assumptions, durability detailing, and buildability. Being a small player on a large development like this one means a lot of coordination calls with the project architects, project managers and fit-out team, as well as with the client representative from Fusion.

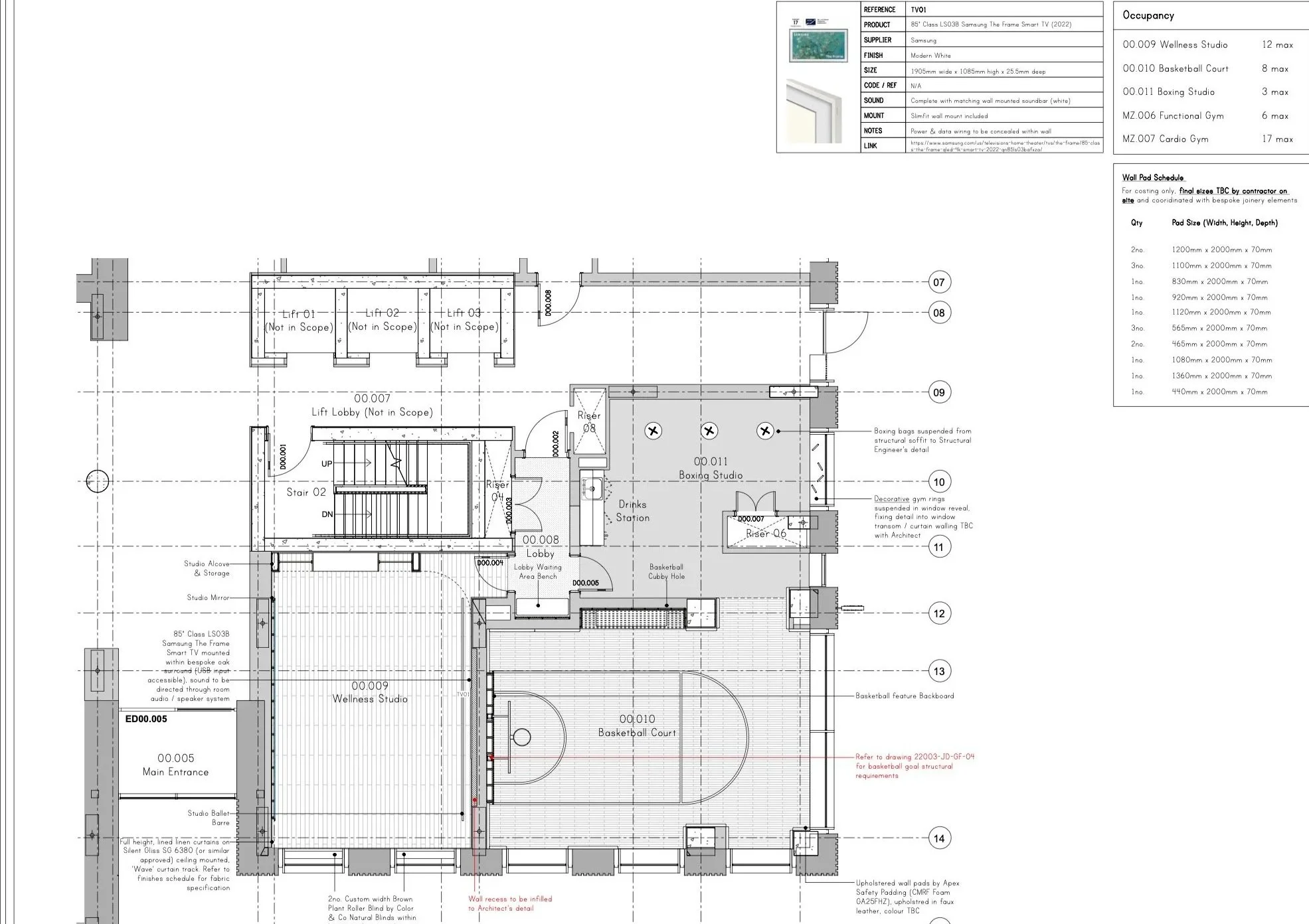
General Arrangement plan of Ground Floor Leisure Spaces for Fusion Students Brent Cross Town London by Biofit

General Arrangement plan of Ground Floor Leisure Spaces for Fusion Students Brent Cross Town London by Biofit

Technical Design Drawings List

Ground Floor General Arrangement Plan

Ground Floor Ceiling & Lighting Plan

Ground Floor Finishes Plan

Ground Floor Power & Data Plan

Mezzanine General Arrangement Plan

Mezzanine Ceiling & Lighting Plan

Mezzanine Finishes Plan

Mezzanine Power & Data Plan

Detail - Wellness Studio Alcove & Storage

Detail - Wellness Studio Mirror

Detail - Basketball Court Feature Backboard

Detail - Basketball Court Cubby Hole & Lobby Panelling

Detail - Boxing Studio Mirror Wall Detail

Detail - Boxing Studio Feature Gym Rings Detail

Detail - Cardio & Functional Gym Wall Finish Details

Finishes Schedule

Fusion Students Brent Cross Town, London

Fusion Students Brent Cross Town promotional video including gyms, basketball court and wellness studio design by Biofit

FAQs

5

What is a PBSA scheme?

1

PBSA stands for Purpose-Built Student Accommodation. It refers to student housing that is specifically designed and constructed for students, rather than converted from another use (such as standard apartments or hotels). PBSA schemes typically combine private bedrooms/studios with shared amenities such as study spaces, social lounges, and wellbeing facilities—helping operators differentiate their offer and improve resident experience.


What is Fusion Brent Cross Town (BXT)?

2

How do you design PBSA gyms for unmanned, 24/7 operation?

Fusion BXT is Fusion Students’ London development at Brent Cross Town, designed to provide a high-quality resident experience with a strong focus on community, wellbeing and amenity provision.


What leisure spaces did Biofit design at Fusion BXT?

3

Biofit designed a 242 m² suite of resident leisure facilities: a strength & cardio gym, a functional training area (including covered outdoor), a yoga/wellness studio, and an indoor basketball court with an adjacent boxing studio.


Why include both “competitive” and “wellbeing” spaces in PBSA?

4

PBSA residents have varied preferences: some want high-energy spaces for training and sport, while others prioritise lower-intensity movement and recovery. A balanced offer typically increases participation, supports mental wellbeing, and strengthens the building’s market positioning.



Design typically prioritises intuitive wayfinding, robust finishes, clear zoning, safe clearances around equipment, and durable details that reduce maintenance. The goal is to create spaces that are easy to use independently while remaining operationally efficient for the operator.


Get In Touch

If you're interested in working with us, complete the form with a few details about your project. We'll review your message and get back to you within 48 hours.