Residential Amenities & Co-Living

Biofit helps residential developers and operators create wellness amenities that increase resident satisfaction and asset value—covering gyms, studios, recovery and spa-inspired features. We also design private residential wellness spaces for high net worth clients, where discretion and buildability are essential.

residential wellness room by Biofit gym spa designers

Residential spa concept for a private client, USA

Our services

Residential wellness facilities we design

  • Residential gyms optimised for peak periods and compact footprints

  • Strength, cardio and functional training zones

  • Mind-body / multi-use studios

  • Recovery zones (stretching, regeneration seating, touchless therapy suites/pods where included)

  • Spa-inspired features (as appropriate to the building and operating model)

  • Changing/locker solutions where relevant

  • Storage and operational support spaces for cleaning and maintenance

Three residential segments

Multi-family / BTR amenities
Wellness spaces designed to drive utilisation, leasing appeal and long-term durability—often with compact footprints and shared-use constraints.

Co-living developments
Amenity-led wellness environments that balance social energy with privacy, and require robust operational rules and maintenance planning.

Private residences (HNW)
Highly tailored wellness rooms and compact home gyms/spa-inspired features—designed with discretion, quality and practical buildability in mind.

CASE STUDIES

Selected residential amenity and private residence projects showing how Biofit supports planning, design and delivery—tailored to the target resident profile, operational model and durability requirements.

Private residential gym and wellness area, USA

wellness recovery area with sauna, ice bath, red light therapy panes by Biofit

Our 3D visualization of the wellness area with its infrared sauna, ice bath, red light therapy panels

SINGLE-FAMILY RESIDENTIAL GYM & WELLNESS AREA DESIGN  CONSULTANT

Background: We worked with a private client on a gym. and two wellness rooms for his new build family home in the USA.

Role: Gym & Wellness Area Design Consultant

Services: Pre-design planning + concept development + equipment selection + interior design

Key zones: functional strength, cardio, stretching, sauna, ice bath, red light therapy panels, massage therapy chair, diagnostics area

Project architects & interior designers: Purple Cherry


Client: Confidential

Timeline: 2025-26

Private residential gym and wellness area, USA

Confidential_Sports Complex Abu Dhabi.jpg

CONFIDENTIAL PRIVATE SPORTS COMPLEX, ABU DHABI, UAE

Background: We advised on a confidential private family sports complex in Abu Dhabi, reviewing the concept for a multi-sport court, gym pavilion and supporting amenities within a high-end residential setting. Role: Specialist Sports Facility Consultant Services: Concept validation + sports planning review + spatial suitability assessment + materials and systems review + refinement recommendations Keyzones: multi-sport court, gym pavilion, lounge / viewing area, lockers, storage, support spaces

Project architects & consultants: Carl Gerges Architects + Top Notch Engineering‍Client: Confidential Timeline: 2026

Private home gym, Houston, Texas, USA

residential gym layout, Houston, Texas, USA by Biofit

residential gym layout for a private client in Houston, Texas, USA

RESIDENTIAL GYM DESIGN CONSULTANT 

Role: Gym consultant

Services: Pre-design planning + concept development + + equipment specification


Outcome: a home gym that maximises available space integrating a carefully curated mix of equipment designed to align with the client’s specific training regime and style preferences.


Client: private client, CONFIDENTIAL

Timeline: 2023

Residential gym @ Alpine Village by Alpine Start Developments, Dallas, TX

alpine village residential gym design by biofit

Image credit: Alpine Village

MULTI-FAMILY RESIDENTIAL GYM FITNESS CONSULTANT

Background: We worked with Alpine Start Development on two of their multi-family residential development projects around Dallas in in 2022-23, including this one in Grand Prairie, Texas.

Role: Gym & Fitness Consultant

Services: Pre-design planning + concept development + equipment selection

Key zones: functional strength, cardio, stretching


Client: Alpine Village by Alpine Start Development

Timeline: 2023

Residential gym @ Alpine Ten55, Celina, Texas

Alpine Start Development Dallas Texas residential gym Biofit fitness consultants

Image credit: Alpine Start Developments, Dallas, Texas

MULTI-FAMILY RESIDENTIAL GYM FITNESS CONSULTANT

Background: We worked with Alpine Start Development on two of their multi-family residential development projects around Dallas in in 2022-23, including this one in Celina.

Role: Gym & Fitness consultant

Services: Pre-design planning + concept development + equipment specification

Key zones: functional strength, cardio, stretching


Client: Alpine Ten55 by Alpine Start Development

Timeline: 2023

Private villa gym design, Mykonos, Greece

private villa Mykonos Greece gym design by Biofit

Villa gym, Mykonos

pRIVATE VILLA GYM DESIGN CONSULTANT

Role: Gym consultant

Services: Pre-design planning + concept development + + equipment selection + pre-opening support


Outcome: An indoor-outdoor gym for a private client who wanted a minimalist, yet functional gym that includes a squat rack, treadmill, spin bike, exercise bench, rower, dumbbells and kettlebells in customized black and stainless steel finish.

Project Architect: Nikos Adrianopoulos, Athens, Greece


Client: private client, CONFIDENTIAL

Timeline: 2022

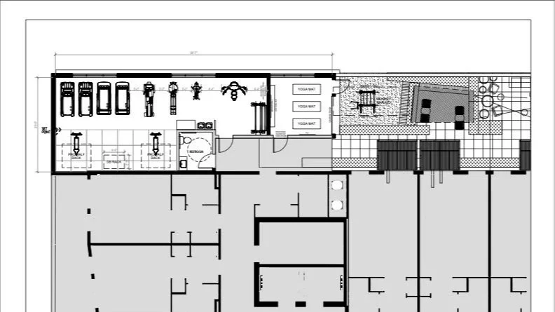
Sheridan Project, Denver, Colorado, USA

sheridan project gym for fish capital USA by Biofit

multi-family residential gym by Biofit

RESIDENTIAL GYM CONSULTANT 

Role: Gym consultant

Services: Pre-design planning + concept development + + equipment specification


Outcome: This residential gym had an indoor and outdoor component to it, within a 120-unit, 7story building planned by Fish Capital Investments in West Colfax, Denver. The project was paused indefinitely due to permitting issues.

Client: Fish Capital Investments

Timeline: 2023

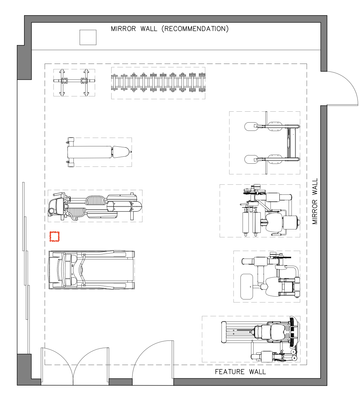
Private villa gym, Catalunya, Spain

residential gym for private client - Biofit gym design consultants

residential villa gym layout for a private client in the Catalan countryside, Spain

RESIDENTIAL GYM CONSULTANT 

Role: Gym consultant

Services: Pre-design planning + concept development + + equipment specification


Outcome: Realization of a compact home gym adapted to the specific requirements of the owner couple and their son, combining cardio machine, foldable squat rack (wall-mounted), dumbbells, a cable pulley and space for a yoga mat.


Client: private client, CONFIDENTIAL

Timeline: 2023

Why use Biofit for residential wellness amenities?

Amenity strategy + utilisation: planning logic that reflects how residents actually use shared facilities.

Durability-led design: materials and layouts designed for heavy daily use and frequent cleaning.

Compact-footprint expertise: clear zoning and equipment footprints that avoid overcrowding.

Modern wellness mix: fitness integrated with recovery and spa-inspired features where appropriate.

Flexible engagement: full interior design delivery, or advisory support alongside your appointed team.

FAQ

  • Yes. We support residential amenities from early planning through design and specification—helping teams deliver wellness spaces that strengthen leasing appeal and resident satisfaction.

  • Residential gyms typically have smaller footprints, varied user ability, and shared-use constraints. Planning needs to prioritise intuitive circulation, safe spacing, strong storage strategy and durability—while still feeling premium.

  • Yes. We can integrate recovery and regeneration features—alongside fitness—where it supports the building’s positioning and operational model

  • Yes. Co-living wellness amenities often need a balance between social energy and privacy, plus clear operational rules. We design environments that are robust, maintainable and experience-led.

  • Yes. Where appropriate, we design private wellness rooms and compact home gyms/spa-inspired environments, typically delivered with discretion and tailored specification.

  • We are equipment manufacturers but we can facilitate equipment specification and selection as well as coordination of the procurement process through to delivery and installation.

GLOSSARY

  • Amenity strategy defines which shared facilities drive real value for the asset—balancing space, budget, utilisation and resident expectations. A strong strategy prevents underused rooms and supports leasing appeal, retention and brand differentiation.

  • Build-to-rent refers to professionally managed rental housing where amenities are a key part of the resident proposition. Wellness amenities in BTR must be durable, easy to maintain, and designed for consistent daily use.

  • Utilisation planning estimates when and how residents use amenities, informing zone sizing, circulation, storage needs and equipment mix. It reduces overcrowding and ensures smaller footprints still function comfortably at peak times.

  • Durability-led specification prioritises materials and equipment that withstand frequent use and cleaning. In residential settings, durability directly impacts lifecycle cost, downtime and the perceived quality residents experience over time.

  • Co-living amenities support a shared lifestyle and community experience. Wellness spaces in co-living must balance social energy with privacy, and include operational considerations such as booking logic, supervision, storage and cleaning.

  • Private residential wellness rooms are tailored home environments for training, recovery and relaxation. They require careful space planning, discreet design solutions, and equipment specification that suits the user’s goals while remaining practical to install and maintain.


Planning wellness amenities for a residential development?

Share your plans and a short brief. We’ll recommend a practical scope—from amenity strategy and concept through interiors, specification and delivery support—aligned to your resident profile and operational realities.